Продажа студий квартир, c площадью до 70 м², 1584 объявлений в Перми
Используя удобную форму поиска с множеством фильтров и сортировкой по параметрам, вы можете подобрать для покупки студию квартиру, c площадью до 70 м² в Перми.
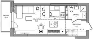
Найденные предложения: 1584 объявлений, можно посмотреть в виде списка или на карте, с описанием, расположением, ценой и другими подробностями.
Подберите подходящую недвижимость из предложений от собственников, риэлторов, застройщиков и агенств недвижимости, связаться с ними можно по телефону или написать сообщение в любом удобном для вас мессенджере, это безопасно и бесплатно.
Для покупки квартиры доступна ипотека от крупнейших банков России: СберБанк, ВТБ, Альфа-Банк, Россельхозбанк, Совкомбанк, Т-Банк, Росбанк, Почта Банк на сумму от 400 000 до 120 000 000 рублей сроком до 30 лет.
Сайт работает во многих городах России.
Цена недвижимости: мин. от руб. до макс. руб.
Средняя цена: руб.
Цена за м2: от руб. до руб.
Средняя цена за м2: руб.
Площадь: от м2 до м2
Средняя площадь: м2
Закладки
Личный кабинет
Показать на карте
Закрыть карту












































































































































































































