На картеПоказать на карте
фильтр

Продажа 2‑комнатных квартир, в строящихся домах (недостроенных новостройках), микрорайон Краснова, 0 объявлений в Перми

Сортировка:
По запросу ничего не найдено!
По вашему запросу ничего не найдено!
Установите более мягкие ограничения на значения фильтров.

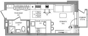
Похожие объявления:
6
7 / 0
8
Как купить двухкомнатную квартиру, в строящемся доме, микрорайон Краснова в Перми на сайте Пермь-недвижимость?

Используя удобную форму поиска с множеством фильтров и сортировкой по параметрам, вы можете подобрать для покупки двухкомнатную квартиру, в строящемся доме, микрорайон Краснова в Перми.

Найденные предложения: 0 объявлений, можно посмотреть в виде списка или на карте, с описанием, расположением, ценой и другими подробностями.

Подберите подходящую недвижимость из предложений от собственников, риэлторов, застройщиков и агенств недвижимости, связаться с ними можно по телефону или написать сообщение в любом удобном для вас мессенджере, это безопасно и бесплатно.

Для покупки квартиры доступна ипотека от крупнейших банков России: СберБанк, ВТБ, Альфа-Банк, Россельхозбанк, Совкомбанк, Т-Банк, Росбанк, Почта Банк на сумму от 400 000 до 120 000 000 рублей сроком до 30 лет.

Сайт работает во многих городах России.

Сколько стоит купить двухкомнатную квартиру в Перми?

Цена недвижимости: мин. от руб. до макс. руб.

Средняя цена: руб.

Цена за м2: от руб. до руб.

Средняя цена за м2: руб.

Площадь: от м2 до м2

Средняя площадь: м2

↑ НАВЕРХ К МЕНЮ